Real Estate near Fort Knox Kentucky Elizabethtown KY Realtors
167 Mill Falls Street
Shepherdsville, KY 40165
$369,000
3 Bedrooms
2 Full Baths
2,592 SqFt ($142 per sqft)
Basement
Year: 1998
Pending: 4-12-2026
HK2601358
0.78 Acres
25 Miles to Fort Knox
Realtor's notes: Welcome home to this beautifully maintained 3-bedroom, 2-bath brick ranch offering space, functionality, and timeless appeal! Nestled on a level lot with mature trees, this property provides both shade and a serene outdoor setting. Step inside to find a spacious primary suite complete with a private en suite bathroom, creating a comfortable retreat at the end of the day. The main level laundry room is thoughtfully designed with a mop sink and abundant cabinet storage, adding convenience to everyday living. The home features a finished walkout basement that expands your living and entertaining space, complete with built-in bookcases that frame the fireplace, creating a warm and inviting focal point. With plumbing already in place for a future bathroom and future customization. Additional highlights include a 2-car attached garage and a separate storage building, providing plenty of room for tools, hobbies, or outdoor equipment. This home blends comfort, character and opportunity - don't miss your chance to make it yours. This home blends comfort, character, and opportunity—don't miss your chance to make it yours!
Listing History
04/13 Pending (no showings)
04/08 $369,000 MLS Entry

Contact Realtor

School Type: County
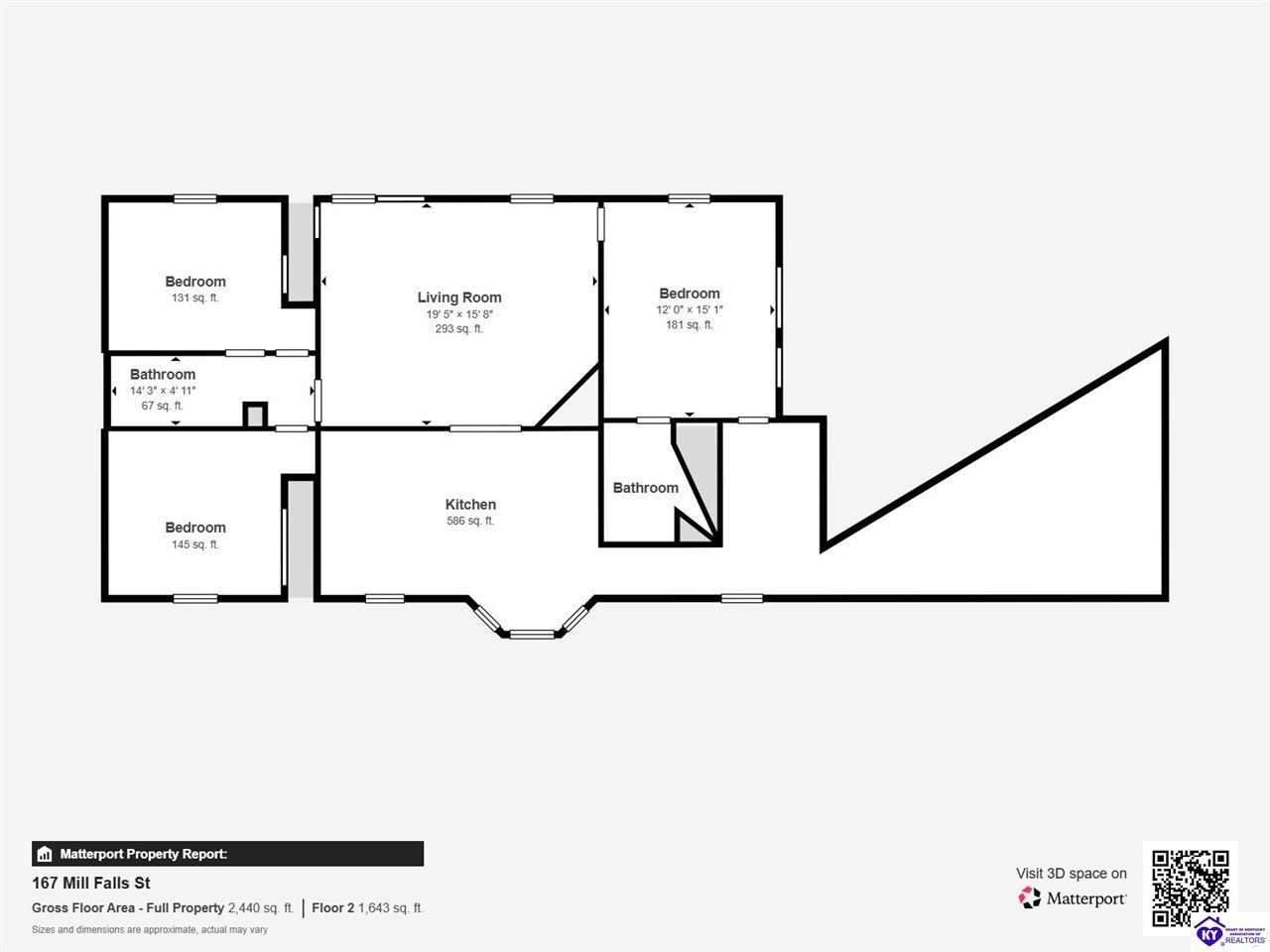
Square Feet
Total Finished: 2,592
Above Ground: 1,392
Basement Finished: 86% 1,200
Basement Total: 1,392
Level 1: 1,392
Source: PVA
Living: 15.8x12
Family: 11.7x26
Primary Bed: 15.1x12
Room Floor Room Floor
Kitchen Main Living Rm Main
Dining Rm Main Family Bsmt
Primary Bd Main Primary Ba Main
Bedroom 2 Other
Bedroom 3 Other
Bedroom 4 Other
Floor Full Baths Partial Baths Utility
Main 2 0 1
Upper 0 0 0
Lower 0 0 0
Bsmt 0 0 0
Directions: From Exit 117 for KY-44/Shepherdsville/ Mt. Washington, at the end of the ramp, head east on KY-44. Go 2 miles. Turn left into Mill Stream Estates. Turn on to Mill Falls St. Sign posted
Auction? No
Subdivision Mill Stream Estates
REO (foreclosure) No
Warranty? No
PVA ID 063-NW-15-010
Deed Book/Page 444/287
Home Style Ranch
Garage? Yes
Garage Info Garage Attached, Auto Door Opener, Front Entry
Basement? Yes
Basement Info Finished-Full, Walk Out
Fireplace Gas Log-Propane
Roof Shingles
Heat Source Electric
Heat Heat Pump
Air Heat Pump
Kitchen Dishwasher, Range Electric, Refrigerator
Dining Kitchen/Dining Combo
Bath Tub/Shower Combo
Doors/Windows Vinyl Frame
Window Treatments
Utility Room Laundry Room
Other Room(s) Family Room
Appliances, etc. Smoke Detector(s)
Flooring Carpet, Vinyl
Wall Type Dry Wall
Interior Ceiling Fan(s)
Exterior Out Building, Exterior Lights, Landscaping
Fence
Exterior Type Brick
Foundation Poured Concrete
Driveway/Road Concrete
Water Type
Water Location
Water Features
Location Subdivision
Water Source County
Sewer Septic
Water Heater Electric
Utilities Electric
IDX: Courtesy of COMMUNITY REAL ESTATE PROFESSIONALS
Accessibility 1st Floor Bathroom
Fees
Association
Easements
County Bullitt
Listed 4/8/2026 (posted: 3:28 PM)
Updated 4/17/2026 2:14 PM
Hotsheet Date 4/13/2026
Status Date 4/13/2026
Photo Change 4/8/2026 3:28 PM
Doc Timestamp 4/8/2026 3:28 PM
Associated Doc. Count 1
Documents Seller Disclosure
Possession Delivery of deed (i.e., closing)
Listing Type Single Family