Real Estate near Fort Knox Kentucky Elizabethtown KY Realtors
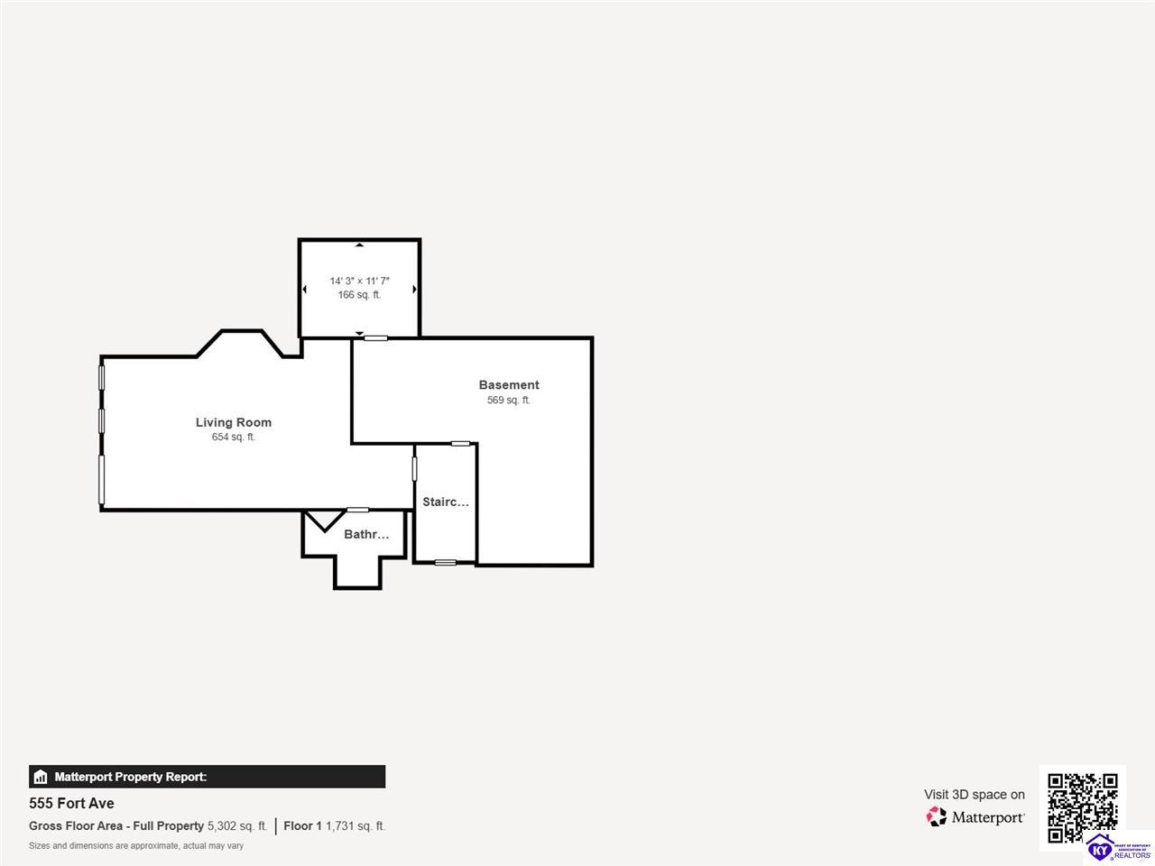
555 Fort Avenue
Vine Grove, KY 40175
$699,900
3 Bedrooms
3 Full Baths & 2 Partial
3,993 SqFt ($175 per sqft)
Basement
Year: 2000
For Sale: 97 days
HK2600180
3.78 Acres
5 Miles to Fort Knox
Realtor's notes: HAS A 48 HR FIRST RIGHT OF REFUSAL CONTRACT. ACCEPTING BACK UP OFFERS Stunning all-brick home offering 3,993 sq. ft. of finished living space on 3.78 acres. This spacious residence features 3 bedrooms, 3 full bathrooms, and 2 half bathrooms, along with dedicated office space, a formal living room, and a family room on the main level. Ideal for both everyday living and entertaining. The finished walkout basement includes a full bathroom, family room and abundant storage. A 3-car attached garage provides convenience, while the impressive 40x60 detached barn/garage equipped with solar panels offers endless possibilities for storage, hobbies, or workshop use. Peaceful country living with ample space inside and out.
Listing History
01/16 $699,900 MLS Entry

Contact Realtor

School Type: County
Verify Schools: 270-422-7500
Square Feet
Total Finished: 3,993
Above Ground: 2,993
Basement Finished: 62% 1,000
Basement Total: 1,613
Level 1: 2,351
Level 2: 642
Source: PVA
Room Floor Room Floor
Kitchen Main Living Rm Main
Dining Rm Main Family Bsmt
Primary Bd Main Primary Ba Main
Bedroom 2 Other Main
Bedroom 3 Other
Bedroom 4 Other
Floor Full Baths Partial Baths Utility
Main 1 2 1
Upper 1 0 0
Lower 0 0 0
Bsmt 1 0 0
Directions: Take Hwy 313 (Joe Prather Hwy), turn right on Fort Ave, drive approximately 5 miles and 555 Fort Ave will be on your left.
Auction? No
Subdivision Knoxwood Estates
REO (foreclosure) No
Warranty? No
PVA ID 158-00-00-118.20
Deed Book/Page 757/414
Home Style 1-1/2 Story
Garage? Yes
Garage Info Garage Attached, Garage Detached, Side Entry
Basement? Yes
Basement Info Finished-Partial, Full, Walk Out
Fireplace 3, Gas Log-Propane
Roof Dimensional, Shingles
Heat Source Electric
Heat Heat Pump
Air Central Air
Kitchen Built In Wall Oven, Cook Top, Dishwasher, Microwave, Pantry, Range Hood, Refrigerator
Dining Formal Dining Room
Bath Bidet, Double Vanity, Separate Shower, Tub/Shower Combo, Whirlpool
Doors/Windows Metal Frame, Vinyl Frame, Wood Frame
Window Treatments Blinds
Utility Room Laundry Room
Other Room(s) Family Room, Formal Dining Room, Great Room, Office
Appliances, etc. Security System, Smoke Detector(s), Water Softener
Flooring Carpet, Hardwood, Vinyl
Wall Type Dry Wall
Interior Ceiling Fan(s), Chandeliers, Closet Light(s), Split Bedroom Floor Plan, Vaulted Ceiling(s), Walk-in Closet(s)
Exterior Aggregate Walks, Deck, Landscaping, Mature Trees, Other-See Remarks
Fence Chain Link, Partial
Exterior Type Brick, Brick/Siding
Foundation Poured Concrete
Driveway/Road Asphalt, Driveway-Blacktop, Driveway-Circular
Water Type
Water Location
Water Features
Location Wooded, County
Water Source County
Sewer Septic
Water Heater Electric
Utilities Cable Available, Electric, Propane Tank-Rented
IDX: Courtesy of SCHULER BAUER REAL ESTATE SERVICES ERA POWERED- Elizabethtown
Accessibility
Fees
Association
Easements Other-See Remarks
County Meade
Listed 1/16/2026 (posted: 9:23 AM)
Updated 1/25/2026 10:30 PM
Hotsheet Date 1/16/2026
Status Date 1/16/2026
Photo Change 1/16/2026 9:23 AM
Doc Timestamp 1/16/2026 9:23 AM
Associated Doc. Count 1
Documents Floor Plan, Plat, Seller Disclosure
Possession Delivery of deed (i.e., closing)
Listing Type Single Family