Real Estate near Fort Knox Kentucky Elizabethtown KY Realtors
48 Carlton Ridge Court
Rineyville, KY 40162
$329,000
4 Bedrooms
2 Full Baths & 1 Partial
2,026 SqFt ($162 per sqft)
Basement
Year: 2003
Pending: 1-11-2026
HK2600041
0.8 Acres
11 Miles to Fort Knox
Realtor's notes: Welcome home to this spacious 2-story, 4-bedroom, 2.5-bath residence offering 2,026 sq ft of comfortable living space, perfectly situated on 0.8 acres at the end of a quiet cul-de-sac. Enjoy the inviting warmth of a gas fireplace, ideal for cozy evenings and gatherings. The home features a full, unfinished basement, providing endless potential for future expansion, storage, or recreation space. Recent updates include a roof just 18 months old, offering peace of mind for years to come. Additional highlights include washer and dryer included and a home warranty for added buyer confidence. With generous indoor space, a large lot, and a private setting, this home is the perfect blend of comfort, function, and opportunity. Schedule your showing today and imagine the possibilities!
Listing History
01/13 Pending (no showings)
01/06 $329,000 MLS Entry

Contact Realtor

School Type: County
High: North Hardin
Verify Schools: 270-769-8800
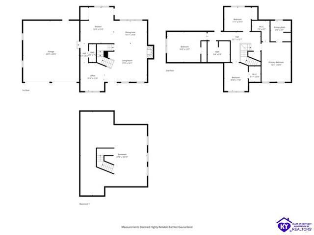
Square Feet
Total Finished: 2,026
Above Ground: 2,026
Basement Finished: 0
Basement Total: 888
Level 1: 888
Level 2: 1,138
Source: PVA
Room Floor Room Floor
Kitchen Main Living Rm Main
Dining Rm Main Family
Primary Bd Upper Primary Ba Upper
Bedroom 2 Other
Bedroom 3 Other
Bedroom 4 Other
Floor Full Baths Partial Baths Utility
Main 0 1 1
Upper 2 0 0
Lower 0 0 0
Bsmt 0 0 0
Directions: From Elizabethtown, Dixie (31), take Hwy 220 towards Rinevyille. Go straight through traffic circle and over railroad tracks, then left on Rineyville School Road. Left onto Lavista Dr, then right on Carlton Ridge Ct. House on right at end of cul-de-sac. Sign posted.
Auction? No
Subdivision Lavista
REO (foreclosure) No
Warranty? No
PVA ID 144-00-03-119
Deed Book/Page 1487/523
Home Style 2 Story
Garage? Yes
Garage Info Carport Attached, Auto Door Opener, Front Entry
Basement? Yes
Basement Info Full, Unfinished, Inside Entrance
Fireplace Gas Log-Propane
Roof Shingles
Heat Source Electric
Heat Heat Pump
Air Central Air
Kitchen Dishwasher, Microwave, Range/Oven, Refrigerator
Dining Kitchen/Dining Combo, Living/Dining Combo
Bath Double Vanity, Tub/Shower Combo
Doors/Windows Vinyl Frame
Window Treatments Blinds
Utility Room Closet, Garage
Other Room(s) Formal Dining Room
Appliances, etc. Dryer, Smoke Detector(s), Washer
Flooring Carpet, Hardwood
Wall Type Dry Wall
Interior Ceiling Fan(s), Walk-in Closet(s)
Exterior Covered Front Porch, Landscaping, Trees
Fence
Exterior Type Vinyl
Foundation Poured Concrete
Driveway/Road Driveway-Asphalt
Water Type
Water Location
Water Features
Location Cul-de-Sac, Subdivision
Water Source County
Sewer Septic
Water Heater Electric
Utilities
IDX: Courtesy of RE/MAX EXECUTIVE GROUP, INC.
Accessibility 1st Floor Bathroom
Fees
Association
Easements
County Hardin
Listed 1/6/2026 (posted: 3:46 PM)
Updated 1/13/2026 10:11 AM
Hotsheet Date 1/13/2026
Status Date 1/13/2026
Photo Change 1/6/2026 3:46 PM
Doc Timestamp 1/6/2026 3:47 PM
Associated Doc. Count 1
Documents Seller Disclosure
Possession Negotiable
Listing Type Single Family