Real Estate near Fort Knox Kentucky Elizabethtown KY Realtors
317 Vineland Place Drive
Vine Grove, KY 40175
$394,900
4 Bedrooms
3 Full Baths & 1 Partial
3,993 SqFt ($99 per sqft)
Basement
Year: 2006
Pending: 2-14-2026
HK25004998
0.24 Acres
4 Miles to Fort Knox
Realtor's notes: This well-maintained, one owner home has so much to offer. 4 bedrooms & an office upstairs with 3 more rooms in the basement. Step inside to find a thoughtful layout featuring a formal dining room and an open-concept kitchen, living, and casual sitting area perfect for gathering with family or hosting friends. Enjoy fun time in the basement eating at the bar, or in the theater room, home gym or office/craft room. Then outside to the wonderful inviting pool. All bedrooms are generously sized with a nice master suite. Call today to view 24 hr. notice is preferred.
Listing History
02/16 Pending (no showings)
12/01/25 $394,900 MLS Entry

Contact Realtor

School Type: County
Verify Schools: 270-769-8800
Square Feet
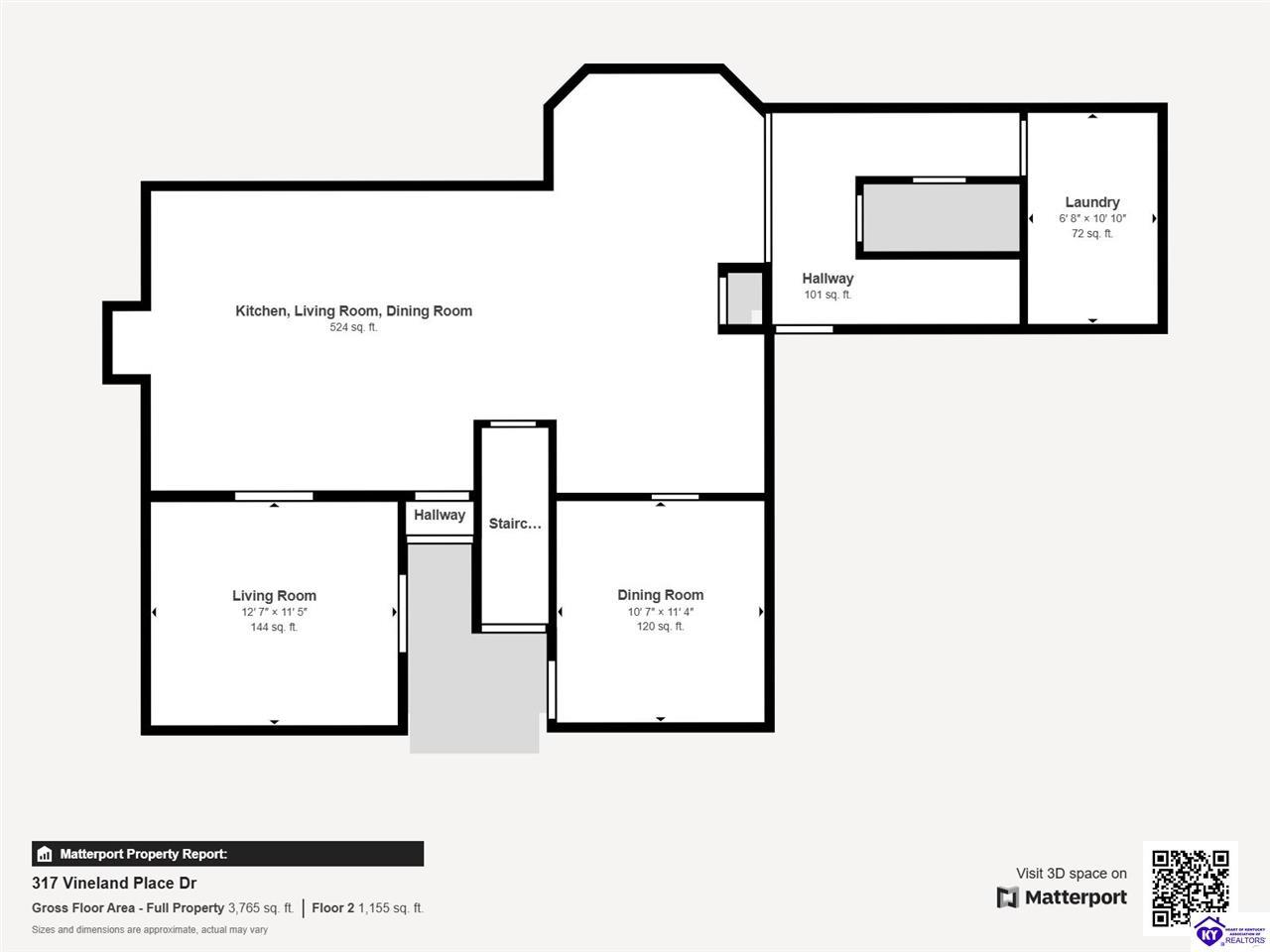
Total Finished: 3,993
Above Ground: 2,889
Basement Finished: 1,104
Basement Total: 1,104
Level 1: 1,255
Level 2: 1,634
Source: PVA
Room Floor Room Floor
Kitchen Main Living Rm Main
Dining Rm Main Family
Primary Bd Upper Primary Ba Upper
Bedroom 2 Other Upper
Bedroom 3 Other Bsmt
Bedroom 4 Other Bsmt
Floor Full Baths Partial Baths Utility
Main 0 1 1
Upper 2 0 0
Lower 0 0 0
Bsmt 1 0 0
Directions: Hwy 313 (Joe Prather) to Vineland Park.
Auction? No
Subdivision Vineland Park
REO (foreclosure) No
Warranty? No
PVA ID 140-10-03-009
Deed Book/Page 1227/739
Home Style 2 Story
Garage? Yes
Garage Info Garage Attached, Front Entry
Basement? Yes
Basement Info Finished-Full, Full
Fireplace Gas Log-Propane
Roof Shingles
Heat Source Electric
Heat Heat Pump
Air Central Air
Kitchen Dishwasher, Microwave, Range Electric
Dining Formal Dining Room
Bath Double Vanity, Separate Shower, Tub/Shower Combo, Whirlpool
Doors/Windows Vinyl Frame
Window Treatments
Utility Room Laundry Room
Other Room(s) Den, Office, Sitting Room
Appliances, etc. Sump Pump
Flooring Carpet, Hardwood, Tile, Vinyl
Wall Type Dry Wall
Interior Ceiling Fan(s), Walk-in Closet(s)
Exterior Covered Front Porch, Deck
Fence Privacy
Exterior Type Vinyl
Foundation Poured Concrete
Driveway/Road
Water Type
Water Location
Water Features
Location Subdivision
Water Source County
Sewer City
Water Heater Electric
Utilities
IDX: Courtesy of SCHULER BAUER REAL ESTATE SERVICES ERA POWERED- Elizabethtown
Accessibility
Fees Association
Association
Easements
County Hardin
Listed 12/1/2025 (posted: 7:51 AM)
Updated 2/16/2026 11:27 AM
Hotsheet Date 2/16/2026
Status Date 2/16/2026
Photo Change 12/1/2025 9:42 AM
First Photo Added 12/1/2025 7:52 AM
Doc Timestamp 12/1/2025 7:52 AM
Associated Doc. Count 1
Documents Seller Disclosure
Possession Negotiable
Listing Type Single Family