Real Estate near Fort Knox Kentucky Elizabethtown KY Realtors
73 Shepherd's Way
Rineyville, KY 40162
$699,900
3 Bedrooms
3 Full Baths
3,300 SqFt ($212 per sqft)
Basement
Year: 2025
Pending: 10-23-2025
HK25004435
1.71 Acres
9 Miles to Fort Knox
Realtor's notes: Welcome to this stunning new construction home designed with modern living in mind! This beautiful 3-bedroom, 3-bath residence offers a spacious and functional layout with high-end finishes throughout. Step inside to find an inviting open-concept living area that flows seamlessly into a gourmet kitchen featuring upgraded appliances, a walk-in pantry, and stylish custom cabinetry. The private office provides a quiet space for work or study, while the finished walkout basement adds even more living and entertaining options. The primary suite is a true retreat, complete with a custom walk-in closet and a luxurious en-suite bath. Enjoy the outdoors with professional landscaping and plenty of room to relax or host gatherings. Move-in ready and thoughtfully designed, this home combines comfort, functionality, and timeless style—everything you’ve been looking for in your next dream home.
Listing History
10/23 Pending (no showings)
10/17 $699,900 MLS Entry

Contact Realtor

School Type: County
Elementary: Rineyville
High: North Hardin
Verify Schools: 270-769-8800
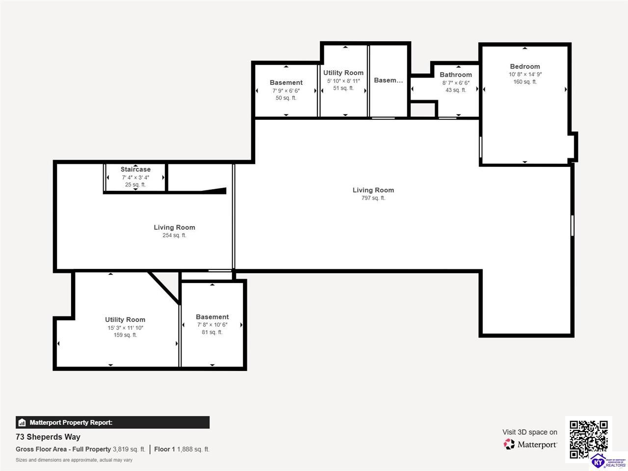
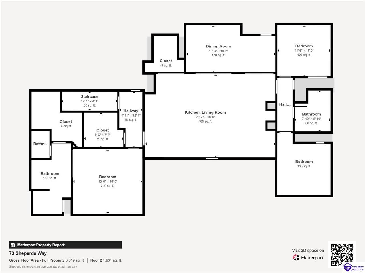
Square Feet
Total Finished: 3,300
Above Ground: 2,000
Basement Finished: 65% 1,300
Basement Total: 2,000
Level 1: 2,000
Source: Builder
Room Floor Room Floor
Kitchen Main Living Rm Main
Dining Rm Main Family Bsmt
Primary Bd Main Primary Ba Main
Bedroom 2 Other Bsmt
Bedroom 3 Other
Bedroom 4 Other
Floor Full Baths Partial Baths Utility
Main 2 0 1
Upper 0 0 0
Lower 0 0 0
Bsmt 1 0 0
Directions: Hwy 220 through Rineyville passed the Dollar General to left on Shepherd's Way. Home is on the left. Sign posted.
Auction? No
Subdivision Bella Woods
Est. Completion 2025-10-10
REO (foreclosure) No
Warranty? Yes
PVA ID 120-00-06-024
Deed Book/Page 1568/846
Home Style Ranch
Garage? Yes
Garage Info Garage Attached, Auto Door Opener, Garage Door Opener
Basement? Yes
Basement Info Finished-Full, Walk Out
Fireplace Gas Log-Propane
Roof Shingles
Heat Source Electric
Heat Heat Pump
Air Central Air
Kitchen Dishwasher, Microwave, Range Hood, Refrigerator, Smooth Top Range, Solid Surface Counter Top
Dining Breakfast Room
Bath Separate Shower, Tub/Shower Combo, Walk in Closet(s)
Doors/Windows Thermo Pane Windows, Vinyl Frame
Window Treatments
Utility Room Laundry Room
Other Room(s) Family Room
Appliances, etc. Smoke Detector(s)
Flooring Vinyl
Wall Type Dry Wall
Interior Ceiling Fan(s), Split Bedroom Floor Plan
Exterior Covered Front Porch, Concrete Walks, Screened Porch
Fence
Exterior Type Brick/Siding
Foundation Poured Concrete
Driveway/Road Driveway-Concrete
Water Type
Water Location
Water Features
Location Out of City Limits, Sidewalks, Subdivision
Water Source County
Sewer Septic System
Water Heater Electric
Utilities Electric, Garbage-Public
IDX: Courtesy of SCHULER BAUER REAL ESTATE SERVICES ERA POWERED- Elizabethtown
Accessibility 1st Floor Bathroom
Fees
Association
Easements
County Hardin
Listed 10/17/2025 (posted: 11:16 AM)
Updated 10/23/2025 7:54 PM
Hotsheet Date 10/23/2025
Status Date 10/23/2025
Photo Change 10/18/2025 7:18 AM
First Photo Added 10/17/2025 11:16 AM
Doc Timestamp 10/17/2025 11:16 AM
Associated Doc. Count 2
Documents Deed Restrictions, Floor Plan, Plat
Possession Delivery of deed (i.e., closing)
Listing Type Single Family