Real Estate near Fort Knox Kentucky Elizabethtown KY Realtors
 
 
1712 N Miles Street
Elizabethtown, KY 42701
$249,900
4 Bedrooms
2 Full Baths
2,138 SqFt ($117 per sqft)
Basement
Year: 1973
Sold: 9-8-2025
HK25002172
0.44 Acres
13 Miles to Fort Knox
Realtor's notes: This classic 4-bedroom, 2-bathroom brick home in the heart of Elizabethtown, KY, blends timeless curb appeal with practical comfort. The exterior features a stately Colonial-inspired facade with tall white columns, symmetrical windows, and a charming oval-glass front door framed by clean white trim. A durable metal roof adds modern resilience, while the well-manicured lawn and mature landscaping give the property a polished, welcoming presence. Step inside and you’ll find a spacious split-level layout. This home offers ample space for both entertaining and privacy. This beautiful home offers comfort, charm, and convenience of being in the heart of Etown. This home is priced to sell and won’t last long! Don’t wait! Schedule your own private tour TODAY!
Listing History
09/08/25 $249,900 Sold
06/27/25 $249,900
05/30/25 $269,900 MLS Entry
05/29/25 List Date

Contact Realtor

School Type: County
Elementary: Heartland
Middle: Bluegrass
High: John Hardin
Verify Schools: 270-769-8800
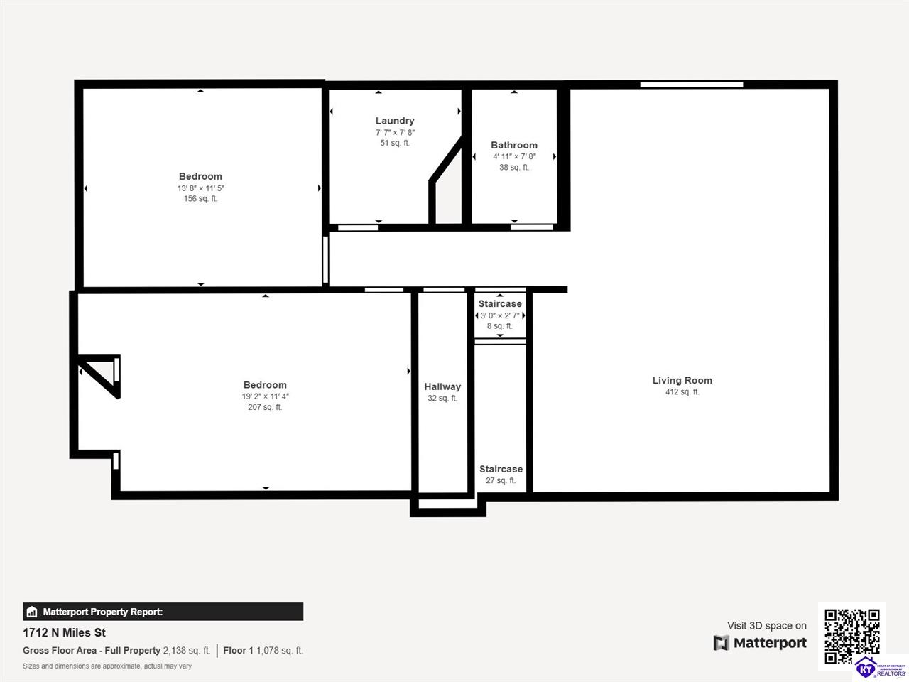
Square Feet
Total Finished: 2,138
Above Ground: 1,078
Basement Finished: 1,060
Basement Total: 1,060
Level 1: 1,078
Source: PVA
Room Floor Room Floor
Kitchen Main Living Rm Main
Dining Rm Family
Primary Bd Main Primary Ba Main
Bedroom 2 Other
Bedroom 3 Other
Bedroom 4 Other
Floor Full Baths Partial Baths Utility
Main 1 0 0
Upper 0 0 0
Lower 0 0 0
Bsmt 1 0 1
Directions: Take exit 94 to Elizabethtown and head towards N Miles Street.
Auction? No
Subdivision Shepherd Hills
REO (foreclosure) No
Warranty? No
PVA ID 219-40-01-021
Deed Book/Page 691/349
Home Style Bi-Level
Garage? Yes
Garage Info Garage Detached
Basement? Yes
Basement Info Finished-Full
Fireplace Wood-burning
Roof Metal
Heat Source Electric
Heat Furnace
Air Central Air
Kitchen Eat-In, Freezer, Microwave, Range/Oven, Refrigerator
Dining Eat-in Kitchen
Bath Tub/Shower Combo
Doors/Windows Screens, Tilt
Window Treatments
Utility Room Laundry Room
Other Room(s) Attic
Appliances, etc. Dryer, Washer
Flooring Carpet
Wall Type Dry Wall
Interior Attic Access Only, Ceiling Fan(s)
Exterior Covered Front Porch, Concrete Walks, Covered Deck, Covered Patio, Exterior Lights, Landscaping, Mature Trees, Storage Shed
Fence Backyard Fence, Chain Link
Exterior Type Brick
Foundation Brick
Driveway/Road Driveway-Blacktop
Water Type
Water Location
Water Features
Location Adjacent to Park, Sidewalks
Water Source County
Sewer City
Water Heater Electric
Utilities Internet Cable
IDX: Courtesy of SCHULER BAUER REAL ESTATE SERVICES ERA POWERED- Elizabethtown
Accessibility
Fees
Association
Easements
County Hardin
Previous Asking Price $269,900
Original Price $269,900
Price Date 2025-06-27
Listed 5/29/2025 (posted: 5/30/2025 10:22 AM)
Updated 9/9/2025 8:41 AM
Hotsheet Date 9/9/2025
Status Date 9/9/2025
Photo Change 5/30/2025 10:22 AM
Doc Timestamp 5/30/2025 10:58 AM
Associated Doc. Count 2
Documents Lead Based Paint Disc., Seller Disclosure
Possession Delivery of deed (i.e., closing)
Bedrooms Below Ground 2
Listing Type Single Family