Real Estate near Fort Knox Kentucky Elizabethtown KY Realtors
 
 
111 Short Street
Hardinsburg, KY 40143
$225,000
3 Bedrooms
2 Full Baths
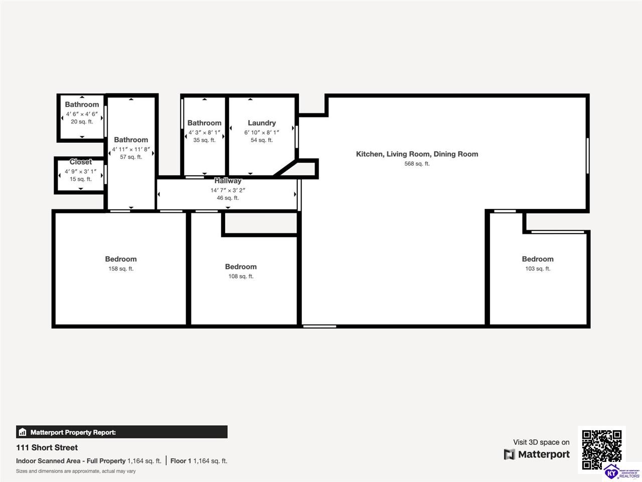
1,296 SqFt ($170 per sqft)
No Bsmt
Year: 1980
Sold: 4-11-2025
HK25000018
0.19 Acres
34 Miles to Fort Knox
Realtor's notes: Completely Remodeled in 2023: New flooring throughout the whole house, roof, Hvac, water heater, cabinets, plumbing, windows, and both bathrooms completely remodeled as well. Walk-in master shower, double sink, open/eat-in kitchen, and not to forget the remodeled sunroom. Everything was done to code and inspected. Schedule your appointment today!
Listing History
04/11/25 $220,000 Sold
02/19/25 $225,000
02/10/25 $239,000
01/02/25 $245,000 MLS Entry
full status tracking began 4/25/2025

Contact Realtor

School Type: City
Square Feet
Total Finished: 1,296
Above Ground: 1,296
Basement Total: 0
Level 1: 1,296
Source: PVA
Room Floor Room Floor
Kitchen Living Rm
Dining Rm Family
Primary Bd Main Primary Ba Main
Bedroom 2 Other
Bedroom 3 Other
Bedroom 4 Other
Floor Full Baths Partial Baths Utility
Main 1 0 1
Upper 0 0 0
Lower 0 0 0
Bsmt 0 0 0
Directions: take a left off of n hwy 259 onto short st, property is on your left
Auction? No
REO (foreclosure) No
Warranty? No
PVA ID HB 1-1-8
Deed Book/Page 450-430
Home Style Ranch
Garage? No
Garage Info
Basement? No
Basement Info
Fireplace
Roof Metal
Heat Source Electric
Heat Central, Forced Air
Air Central Electric
Kitchen Cook Top, Dishwasher, Kitchen Bar, Microwave, Range Electric, Refrigerator
Dining Eat-in Kitchen, Formal Dining Room
Bath Double Vanity, Tub/Shower Combo, Walk in Closet(s)
Doors/Windows Storm Doors, Vinyl Frame
Window Treatments Blinds
Utility Room Laundry Room
Other Room(s) Sun Room
Appliances, etc. Dryer, Washer
Flooring Vinyl
Wall Type Dry Wall
Interior Walk-in Closet(s)
Exterior Porch, Screened Porch
Fence Backyard Fence, Fenced Yard, Wood, Rail, Log, Board
Exterior Type Brick
Foundation Brick, Crawl Space
Driveway/Road Driveway-Gravel
Water Type
Water Location
Water Features
Location In City Limits, Interior Lot
Water Source City
Sewer City
Water Heater Electric
Utilities Electric
IDX: Courtesy of KELLER WILLIAMS HEARTLAND
Accessibility 1st Floor Bathroom, Level Lot
Fees
Association
Easements
County Breckinridge
Previous Asking Price $239,000
Original Price $245,000
Price Date 2025-02-19
Listed 1/2/2025 (posted: 6:56 PM)
Updated 4/14/2025 6:28 PM
Hotsheet Date 4/14/2025
Status Date 4/14/2025
Photo Change 2/10/2025 1:07 PM
First Photo Added 1/2/2025 6:57 PM
Doc Timestamp 2/10/2025 11:57 AM
Associated Doc. Count 1
Documents Aerial Photo, Deed, Floor Plan, Seller Disclosure
Possession 30 days after delivery of deed (i.e., closing)
Listing Type Single Family